You must be logged in to download file.

Log in
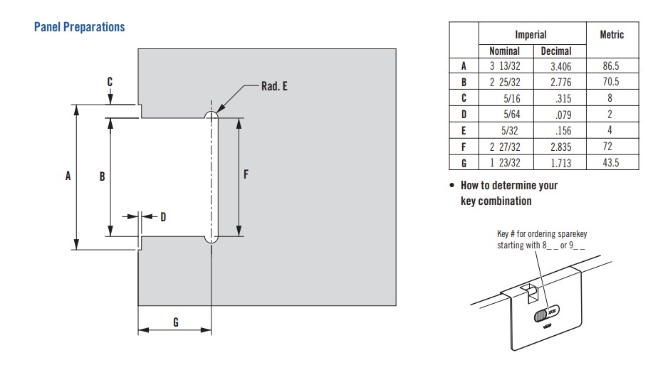
Measurements
secure measurment

SECURE

You must be logged in to download file.

Log in
  • Slide bolt lock for wash board, bi-fold, companionway doors and other door configurations.
  • Fits door thicknesses between 10-12.5mm.
  • P-striker and two keys included. Available in black or white.
  • Spacer is needed for 10mm doors
Find your part number
Loading...
Part number

MG-01-XXX-50

Application photos